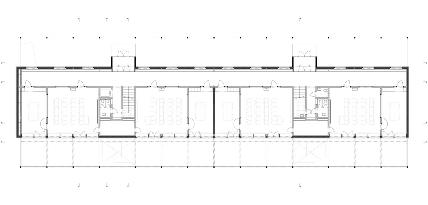
020 Erweiterung Schulanlage Neufeld Sursee, 1.Etappe

Projektwettbewerb 1. Preis 2009
Realisierung 1. Etappe 2011-2012, 2. Etappe 2014-2015
Bauherrschaft Einwohnergemeinde Stadt Sursee

Neubau von 8 Klassenzimmern mit Gruppenräumen für Basisstufe,
Neubau Tagesstrukturen und Sanierung bestehende Trakte
Geschossfläche 6‘100m2

Arbeitsgemeinschaft mit kunzarchitekten, Sursee
Umgebung Appert & Zwahlen, Cham
Fotos Bruno Meier, Sursee